- Woonoppervlakte
- Circa 51 m²
- Perceeloppervlakte
- Circa 748 m²
- Bouwjaar
- Gebouwd in 1957
- Aantal kamers
- 4 kamers (3 slaapkamers)
Het park 't Vennegien is opgezet als bungalowpark met recreatiewoningen op eigen grond maar in praktijk zijn de meeste woningen permanent bewoond. De ligging van de woning is ideaal voor natuurliefhebbers. Spier is een prachtig dorp omringd door groene velden en bossen. Er zijn diverse wandel- en fietsroutes in de omgeving, waardoor u optimaal kunt genieten van de natuurlijke schoonheid van Drenthe. Tegelijkertijd zijn Beilen en Hoogeveen gemakkelijk te bereiken, waar u alle benodigde voorzieningen kunt vinden, zoals winkels, restaurants, sportvoorzieningen en scholen.
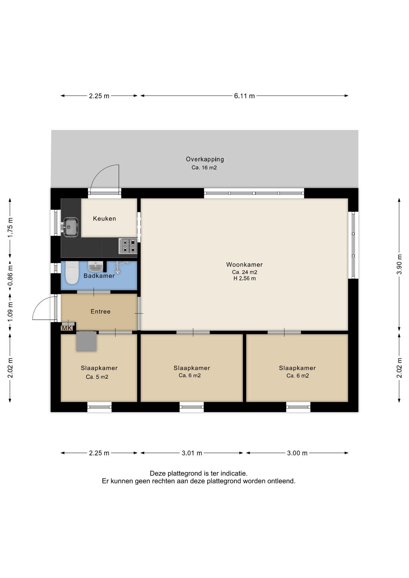
BEGANE GROND
Entree in hal met garderobe en meterkast. De woonkamer (ca. 24m²) is licht en ruimtelijk, met grote ramen die zorgen voor veel natuurlijke lichtinval en een prachtig uitzicht op de omgeving. De dichte keuken is eenvoudig en voorzien van een koelkast, 4-pits gaskookplaat, afzuigkap en volop bergruimte. Aan de achterzijde van de woning zijn 3 slaapkamers (ca. 5m², ca. 6m² en ca. 6m²). Tot slot is er uiteraard een badkamer aanwezig, de is voorzien van douche, wastafel en toilet.
TUIN: Het overstekende dak zorgt voor een heerlijke plek om buiten te zitten in elke weersomstandigheid. De woning staat in het bos, aan de rand van het grote ven, waar je kunt genieten van je privacy, rust en de natuur. Rondom bloeien er het hele jaar door verschillende bloemen om van te genieten. Er is een blokhut aanwezig, ideaal voor het opbergen van fietsen en/of tuingereedschap.
STERKE PUNTEN EN BIJZONDERHEDEN
- Vrijstaande bungalow op een fantastische locatie;
- Woonkamer met een prachtig uitzicht en veel lichtinval;
- Ruime kavel van ca. 748m² eigen grond;
- De woning beschikt over drie slaapkamers;
- VVE kosten bedragen circa €400,- per jaar;
- Nabij verschillende recreatiegebieden als het Nationaal park 't Dwingeldererveld en de Col du Vam waar u zich ook sportief kunt vermaken.
Overdracht
- Vraagprijs
- € 275.000 k.k.
- Status
- Verkocht
- Aanvaarding
- In overleg
Bouw
- Object type
- Bungalow, vrijstaande woning
- Soort bouw
- Bestaande bouw
- Bouwjaar
- 1957
- Soort dak
- Lessenaardak bedekt met bitumineuze dakbedekking
Oppervlakte en inhoud
- Woonoppervlakte
- 51 m²
- Perceeloppervlakte
- 748 m²
- Inhoud
- 194 m³
- Externe bergruimte
- 6 m²
- Gebouwgeb. buitenruimte
- 16 m²
Indeling
- Aantal kamers
- 4 kamers (3 slaapkamers)
- Aantal badkamers
- 1 badkamer
- Badkamervoorzieningen
- Toilet, douche, wastafel
- Aantal woonlagen
- 1 woonlaag
- Voorzieningen
- Glasvezel kabel, natuurlijke ventilatie
Energie
- Energielabel
- G
- Energielabel registratie
- 10-07-2025
- Isolatie
- Dubbel glas, hr glas
- Verwarming
- Cv-ketel
- Warm water
- Cv-ketel
- Cv ketel
- Remeha combiketel gas gestookt uit 2022 (huur)
Buitenruimte
- Ligging
- Aan bosrand, aan park, aan rustige weg, beschutte ligging, in bosrijke omgeving
- Tuin
- Achtertuin, voortuin, zijtuin, tuin rondom
- ligging tuin
- Gelegen op het zuiden
Bergruimte
- Schuur / berging
- Vrijstaande houten berging
- Voorzieningen
- Voorzien van elektra
Garage
- Soort garage
- Geen garage
Parkeergelegenheid
- Soort parkeergelegenheid
- Openbaar parkeren, op eigen terrein
Energieverbruik in Spier
Energielabel deze woning
Energielabel G
Publicatie energielabel: 10-07-2025
Stroomverbruik per jaar
(Gemiddelde vrijstaande woning in Spier)
Gasverbruik per jaar
(Gemiddelde vrijstaande woning in Spier)
* Cijfers zijn afkomstig van het CBS en bedoeld als indicatie en kunnen verschillen voor deze woning
Indicatie hypotheeklasten
Eigen inleg:
Spaargeld / overwaarde
Rente:
Laagste 10-jaars rente
Laagste 10-jaars rente
2,76% - Centraal Beheer Groen... - NHG
2,98% - Centraal Beheer Groen... - 80%
Laagste 20-jaars rente
3,19% - Centraal Beheer Groen... - NHG
3,31% - Centraal Beheer Groen... - 80%
Laagste 30-jaars rente
3,34% - Centraal Beheer Groen... - NHG
3,47% - Centraal Beheer Groen... - 80%
Hypotheek:
Bruto maandlasten: € 0 p/m
Netto maandlasten: € 0 p/m
Hoe berekenen we dit?
Het rentepercentage is gebaseerd op de laagste 10-jaars vaste rente voor één hypotheekdeel. De vermelde rente (2.76% met NHG) is gecontroleerd op 20-09-2025. Deze berekening is gebaseerd op een annuïteitenhypotheek die volledig wordt afgelost, waarbij de maandlasten gedurende de gehele looptijd gelijk blijven. De werkelijke rente en netto maandlasten kunnen variëren, afhankelijk van uw persoonlijke situatie en de hypotheekverstrekker. Raadpleeg een financieel adviseur voor een nauwkeurige berekening en advies. Aan deze berekening kunnen geen rechten worden ontleend; het dient enkel als indicatie.
Documentatie
Kadastrale kaart
Leefomgeving
Vragenlijst B
Lijst van Zaken
Energielabel
Plattegronden PDF
WOZ waarderapport
BAG uittreksel
Brochure
Bezoek onze website
Bezichtiging
Bod uitbrengen
Waardebepaling
Zoekopdracht
Alles downloaden
Zonnegrenzen bekijken
Op de kaart
Inwoners in Spier
Cijfers voor postcodegebied 9417
- Totaal aantal inwoners
- 355 inwoners
- Mannen
- 55%
- Vrouwen
- 45%
Inwoners in Spier
Cijfers voor postcodegebied 9417
- tot 15 jaar
- 13%
- 15 tot 25 jaar
- 11%
- 25 tot 35 jaar
- 18%
- 45 tot 65 jaar
- 37%
- 65 en ouder
- 23%
Huishoudens in Spier
Cijfers voor postcodegebied 9417
- Eenpersoons zonder kinderen
- 5000%
- Meerpersoons zonder kinderen
- 6000%
- Huishoudens zonder kinderen
- 11000%
Huishoudens in Spier
Cijfers voor postcodegebied 9417
- Huishoudens met één kind
- 1%
- Huishoudens met meerdere kinderen
- 4500%
- Huishoudens met kinderen
- 4501%
Woningen in Spier
Cijfers voor postcodegebied 9417
- Woningen voor 1945
- 30%
- Woningen tussen 1945 en 1965
- 25%
- Woningen tussen 1965 en 1975
- 5%
- Woningen tussen 1975 en 1985
- 10%
- Woningen tussen 1985 en 1995
- 20%
Woningen in Spier
Cijfers voor postcodegebied 9417
- Woningen tussen 1995 en 2005
- 10%
- Woningen tussen 2005 en 2015
- 1%
- Woningen na 2015
- 1%
- Huurwoningen
- 10%
- Koopwoningen
- 90%
Overige in Spier
Cijfers voor postcodegebied 9417
- Gemiddelde WOZ waarde
- € 276.000,-
- Personen onder de 65 met uitkering
- Niet beschikbaar
Overige in Spier
Cijfers voor postcodegebied 9417
- Adressen per km²
- 55
- Stedelijkheid (schaal 1 op 5)
- 20%
Korte feiten over Spier
Spier is een dorp in de gemeente Midden-Drenthe in de Nederlandse provincie Drenthe en is gelegen ten oosten van de autosnelweg A28, bij de kruising met de provinciale weg N855. Ten westen van de A28 ligt het Nationaal Park Dwingelderveld.
Groenhout Makelaars
Indien u vragen heeft of u wilt een bezichtiging inplannen, dan kunt u gebruik maken van het formulier hiernaast. Er zal daarna op korte termijn contact met u worden opgenomen.
Brink 4
9411 KR, Beilen
0593 23 21 21 midden-drenthe@groenhoutmakelaars.nl www.groenhoutmakelaars.nlContact opnemen
Dé makelaar in Midden-Drenthe
Bij Groenhout Makelaars Midden-Drenthe staan we klaar om je te ondersteunen bij de verkoop van je huidige woning of de aankoop van je droomhuis. Onze diensten beperken zich niet tot Midden-Drenthe; we zijn ook actief in omliggende gemeentes. We hechten veel waarde aan flexibiliteit, dus afspraken zijn ook mogelijk in de avonduren en op zaterdagen. Dankzij zijn achtergrond in de financiële sector beschikt Richard over uitgebreide kennis op financieel gebied en hij is uiteraard op de hoogte van alle marktontwikkelingen. Als creatieve makelaars streven we ernaar om gestelde doelen op originele wijze te realiseren. We zijn gepassioneerd en gedreven in alles wat we doen, en we kennen de vastgoedsector door en door. Onze aanpak gaat verder dan de standaard kantooruren en omvat puur ondernemerschap. We richten ons niet alleen op zakelijke aspecten, maar ook op sociale elementen. We zijn alert op nieuwe trends en passen deze toe in onze werkwijze. Onze expertise staat garant voor jouw gemak.
Het is onze passie en ons sterke punt om uitdagingen aan te gaan en zo tot een optimale dienstverlening te komen, van begin tot eind en zelfs daarna! Neem eens een kijkje bij onze recensies; wellicht nodigt dit je uit voor een vrijblijvend gesprek?
Nieuwste reviews
-
Dorpsstraat 38
Een waarde volle warme menselijk makelaar. Die zijn klanten kent..Die naar de klant luistertHans en Marga
-
Hendrik Reindersweg 28 46A
Goed bereikbaar. Duidelijk overleg ondanks soms lastige klanten. Terugkoppeling helder kortom het hele team erg enthousiast en vriendelijk!
-
Marcelisstraat 25
Beter dan ik verwacht had. Als er iets is komen ze bij je langs.Ben héél erg tevreden!!Deze makelaar zou ik iedereen aanbevelen!